Lévignacq (40170) Maison landaise avec combles aménagés
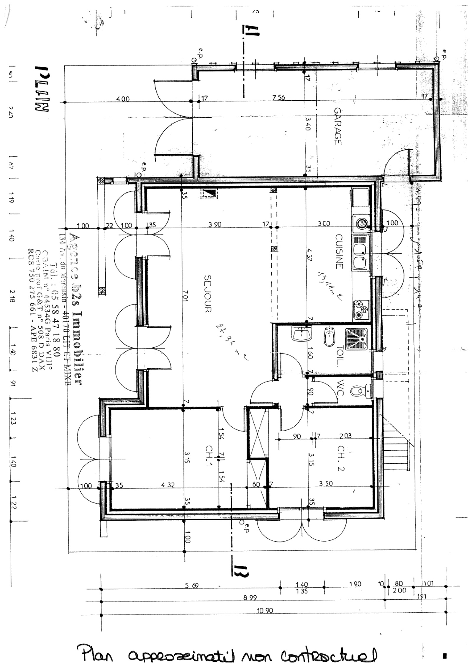
Découvrez cette agréable maison de style landais, de construction traditionnelle d'une surface habitable d’environ 73 m² au sol + tout l'etage en sous pente entierement isolé et aménagé.
Située au calme sur la commune de Lévignacq, elle offre un terrain arboré et coloré entierement clos avec portail electrique et portillon. Cadre de vie paisible et naturel.
La maison se compose d’une belle pièce de vie lumineuse avec cheminée insert, cuisine ouverte, idéale pour partager des moments conviviaux en famille ou entre amis
L’espace nuit comprend deux chambres confortables, une salle d’eau moderne ainsi qu’un WC indépendant.
Un garage attenant d’environ 25 m² complète l’ensemble et dispose au fond d’une salle de bains/buanderie, offrant un espace supplémentaire pratique.
À l’extérieur, vous profiterez d’une terrasse partiellement couverte, parfaite pour les repas en plein air et les moments de détente. Le jardin arboré apporte charme et intimit dans
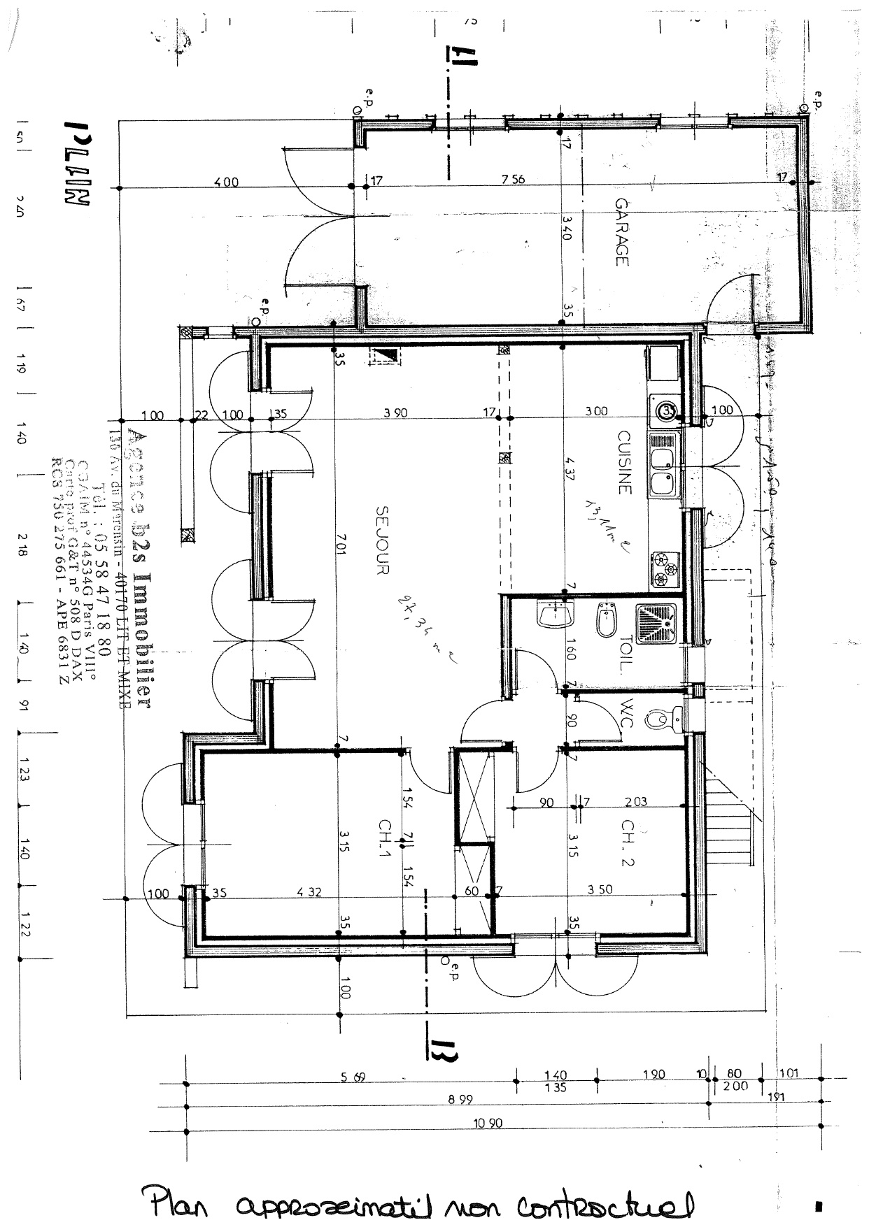
Découvrez cette agréable maison d’environ 70 m² habitables, située au calme à Lévignac, sur un terrain arboré offrant un cadre de vie paisible et naturel.
La maison se compose d’une belle pièce de vie lumineuse avec cuisine ouverte, idéale pour partager des moments conviviaux en famille ou entre amis.
L’espace nuit comprend deux chambres confortables, une salle d’eau moderne ainsi qu’un WC indépendant.
Un garage attenant d’environ 25 m² complète l’ensemble et dispose au fond d’une salle de bains, offrant un espace supplémentaire pratique.
À l’extérieur, vous profiterez d’une terrasse partiellement couverte, parfaite pour les repas en plein air et les moments de détente. Le jardin arboré apporte charme et intimité.
Les combles aménagés, accessibles par un escalier extérieur en bois, constituent un espace supplémentaire pouvant être utilisé selon vos besoins (bureau, couchage d’appoint, stockage, atelier…).
Un abri de jardin en bois ainsi qu’un forage viennent compléter les prestations de ce bien.
A visiter sans tarder !
Les informations sur les risques auxquels ce bien est exposé sont disponibles sur le site Géorisques
Montant estimé des dépenses annuelles d'énergie pour un usage standard est compris entre 1 545 € et 2 091 € . Prix moyens des énergies indexés sur les années 2021, 2022 et 2023 (abonnements compris).
-
Commerces et santé
-
Loisirs
-
Ecoles
-
Transports
-
Pratique
Les informations recueillies sur ce formulaire sont enregistrées dans un fichier informatisé par La Boite Immo agissant comme Sous-traitant du traitement pour la gestion de la clientèle/prospects de l'Agence / du Réseau qui reste Responsable du Traitement de vos Données personnelles.
La base légale du traitement repose sur l'intérêt légitime de l'Agence / du Réseau.
Elles sont conservées jusqu'à demande de suppression et sont destinées à l'Agence / au Réseau.
Conformément à la loi « informatique et libertés », vous disposez des droits d’accès, de rectification, d’effacement, d’opposition, de limitation et de portabilité de vos données. Vous pouvez retirer votre consentement à tout moment en contactant directement l’Agence / Le Réseau.
Consultez le site https://cnil.fr/fr pour plus d’informations sur vos droits.
Si vous estimez, après avoir contacté l'Agence / le Réseau, que vos droits « Informatique et Libertés » ne sont pas respectés, vous pouvez adresser une réclamation à la CNIL.
Nous vous informons de l’existence de la liste d'opposition au démarchage téléphonique « Bloctel », sur laquelle vous pouvez vous inscrire ici : https://www.bloctel.gouv.fr
Dans le cadre de la protection des Données personnelles, nous vous invitons à ne pas inscrire de Données sensibles dans le champ de saisie libre.
Ce site est protégé par reCAPTCHA, les Politiques de Confidentialité et les Conditions d'Utilisation de Google s'appliquent.
Détails des diagnostics énergétiques
Montant estimé des dépenses annuelles d'énergie pour un usage standard est compris entre 1 545 € et 2 091 € . Prix moyens des énergies indexés sur les années 2021, 2022 et 2023 (abonnements compris).
