Description de l'offre
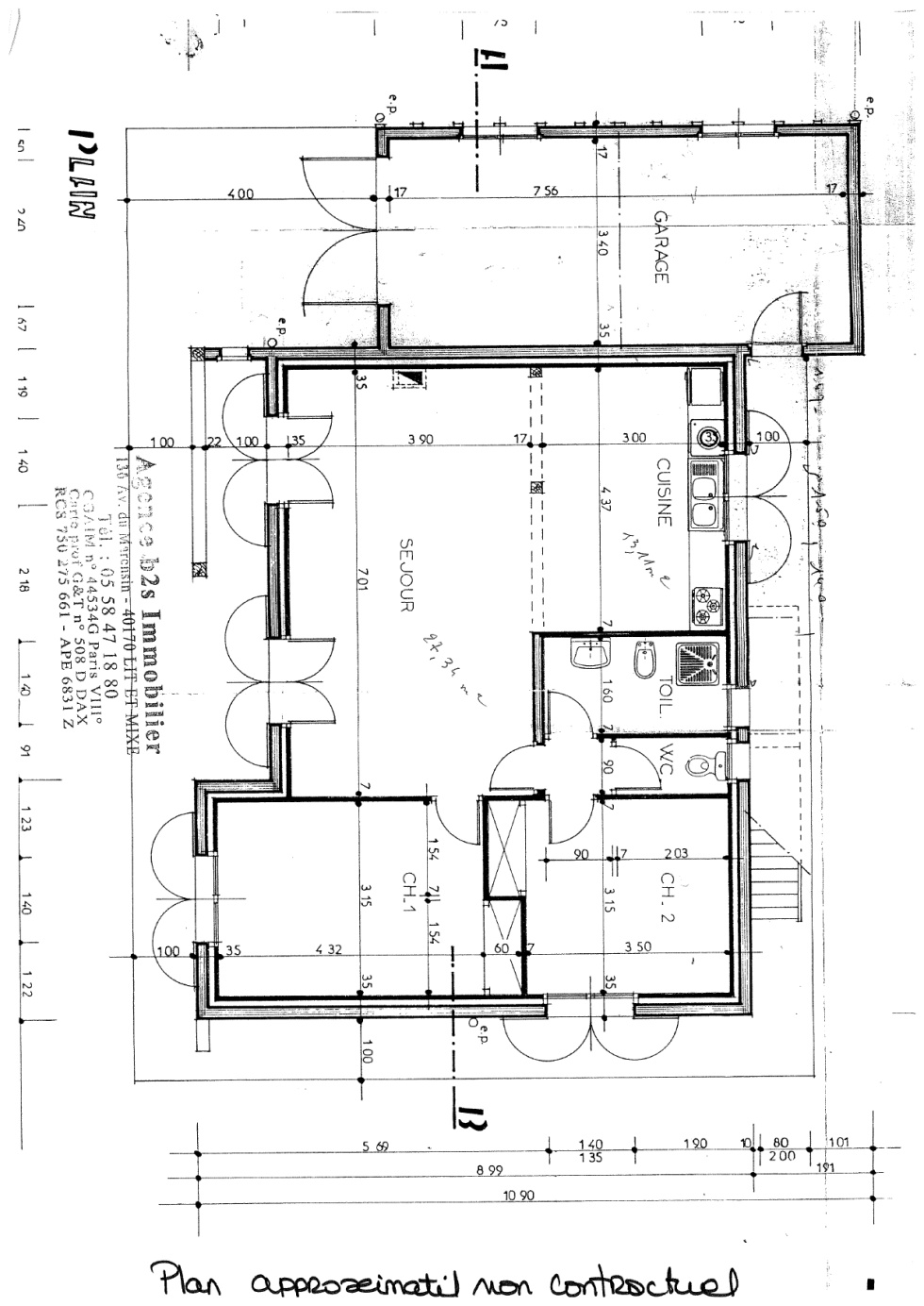
Découvrez cette agréable maison de style landais, de construction traditionnelle d'une surface habitable d’environ 73 m² au sol + tout l'etage en sous pente entierement isolé et aménagé.
Située au calme sur la commune de Lévignacq, elle offre un terrain arboré et coloré entierement clos avec portail electrique et portillon. Cadre de vie paisible et naturel.
La maison se compose d’une belle pièce de vie lumineuse avec cheminée insert, cuisine ouverte, idéale pour partager des moments conviviaux en famille ou entre amis L’espace nuit comprend deux chambres confortables, une salle d’eau moderne ainsi qu’un WC indépendant.
Un garage attenant d’environ 25 m² complète l’ensemble et dispose au fond d’une salle de bains/buanderie, offrant un espace supplémentaire pratique.
À l’extérieur, vous profiterez d’une terrasse partiellement couverte, parfaite pour les repas en plein air et les moments de détente. Le jardin arboré apporte charme et intimit dans
Découvrez cette agréable maison d’environ 70 m² habitables, située au calme à Lévignac, sur un terrain arboré offrant un cadre de vie paisible et naturel.
La maison se compose d’une belle pièce de vie lumineuse avec cuisine ouverte, idéale pour partager des moments conviviaux en famille ou entre amis. L’espace nuit comprend deux chambres confortables, une salle d’eau moderne ainsi qu’un WC indépendant.
Un garage attenant d’environ 25 m² complète l’ensemble et dispose au fond d’une salle de bains, offrant un espace supplémentaire pratique.
À l’extérieur, vous profiterez d’une terrasse partiellement couverte, parfaite pour les repas en plein air et les moments de détente. Le jardin arboré apporte charme et intimité.
Les combles aménagés, accessibles par un escalier extérieur en bois, constituent un espace supplémentaire pouvant être utilisé selon vos besoins (bureau, couchage d’appoint, stockage, atelier…).
Un abri de jardin en bois ainsi qu’un forage viennent compléter les prestations de ce bien.
A visiter sans tarder !
Les informations sur les risques auxquels ce bien est exposé sont disponibles sur le site Géorisques


